Fiyat ve Kapsam:
İskele statik projesi:
- Maksimum 24m yüksekliğinde olan cephe iskelesi statik projesi bedeli 4.500TL dir. Ödemelerinizi havale yada EFT ile gerçekleştirebilirsiniz.
- Proje Kapsamı: İMO kayıtlı İnş. Müh. İmzalı Statik hesap raporu ve çizimleridir
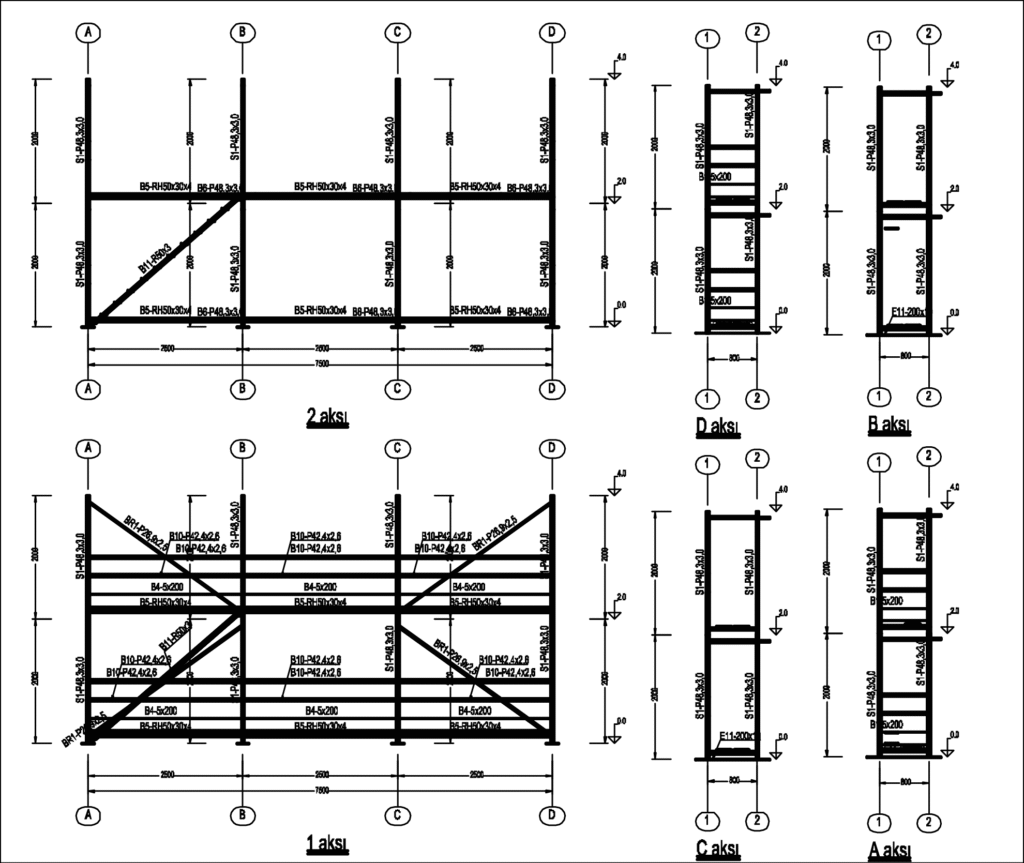
- Çizimler plan kesit görünüşler ve tipik iskele bileşenlerini gösteren çizimlerden oluşur.
- Hazırlanan rapor ve çizimler elektronik ortamda “PDF” formatında, imzalı olarak iletilecektir.
- Siparişi verilen iskele projesi, ödemesi tamamlandıktan sonra 2 iş günü içerisinde elektronik olarak teslim edilir.
- Projeye başlamak için Autocad formatlı (DWG) mimari proje yeterli olmaktadır. Mimari proje yok ise yapıya ait fotoğraflar gereklidir.
- İş güvenliği uzmanlarından yada Bakanlık Müfettişlerinden bir açıklama istenirse, çekinmeden her zaman bizimle irtibata geçebilirsiniz.
- İskele statik projesinde StaSteel programı kullanılmaktadır.
- Ayrıca istenirse ıslak imzalı kağıt basım ayrıca fiyatlandırılarak teslim edilebilir.


Hakkımızda ve iletişim:
İnş. Müh. Ziya YILDIRIM
İnşaat Mühendisi (YTÜ/1994 )
• +30 Yıl Mühendislik deneyimi
• 2010 yılından beri +750 iskele statik projesi tecrübesi
• Türkiye’nin her yerine hizmetAdres: İçerenköy Mah. Topçu İbrahim Sk.
No:19 / D:25 PK: 34752 Ataşehir/İSTANBUL
GSM : +90 (532) 261 62 40
e-mail: iskeleprojesizy@gmail.com
Örnek İskele Projesi:
İskele statik projesi ve çizimlerimizin Teslim standartları hakkında fikir vermesi açısından ekteki PDF formatlı projeyi inceleyebilirsiniz